Your browser does not support the audio element.
MENU
Anasayfa
Kurumsal
Hakkımızda
Vizyon-Misyon
Yönetim
Belgelerimiz
Merkez Ofisimiz
Projeler
NURKENT ÖZLÜCE
NURKENT YILDIRIM (ETÜT)
NURKENT BADEMLİ
NURKENT BADEMLİ (ETÜT)
NURKENT YALOVA
Proje Görselleri
NURKENT ÖZLÜCE
NURKENT YILDIRIM (ETÜT)
NURKENT BADEMLİ
NURKENT BADEMLİ (ETÜT)
İletişim
İletişim
444 4 687 (pbx)
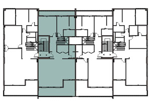
Kat Planları
4+1 Bahçe Köşe
3+1 Bahçe Orta
3+1 Bahçe Köşe
4+1 Köşe Dubleks
4+1 Orta Dubleks
5+1 Orta Dubleks
5+1 Köşe Dubleks
NURKENT BADEMLİ
Proje Galeri
Kat Planları
Şantiye Güncel Fotoğraflar
Lokasyon